Description
TANAH PANTAI SABA – OCEANFRONT LAND INVESTMENT IN GIANYAR, BALI
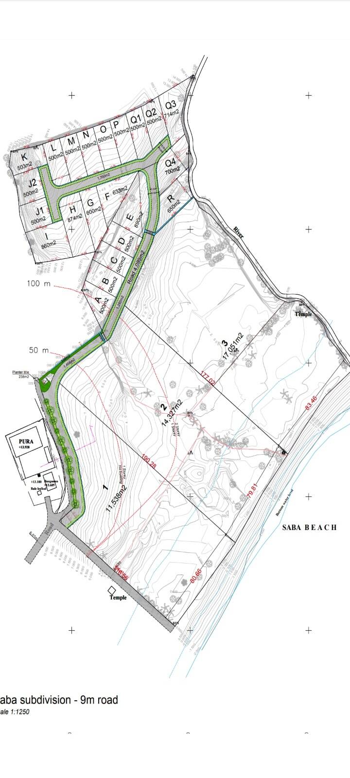
An extraordinary opportunity to own a rare oceanfront freehold land in Pantai Saba, Gianyar, one of Bali’s most promising coastal areas. Spanning 11,500 sq m (115 are), this premium land offers a perfect blend of seaside tranquility and strategic accessibility — ideal for the development of a luxury resort, private villa complex, or exclusive beachfront estate.
Located just 25 minutes from Sanur Harbour, 50 minutes from Ubud, and 60 minutes from Ngurah Rai International Airport, this site combines privacy with convenience, making it one of the most desirable investment parcels in Bali’s eastern coastline.
Property Details
Location: Pantai Saba, Gianyar – near Sanur
Land Size: 11,500 sq m (115 are)
Frontage: Beachfront
Access Road: 9-meter wide complex road
Utilities: Underground electricity network & PDAM water supply ready
Proximity:
• 25 minutes to Sanur Harbour
• 50 minutes to Ubud center
• 60 minutes to Ngurah Rai International Airport
Certificate: Freehold (SHM)
Price: IDR 800,000,000 per are
Total Price: IDR 92,304,000,000
Highlights
• Prime beachfront location with unobstructed ocean views
• Close to major access road Bypass Ida Bagus Mantra
• Surrounded by developing villa complexes and tourism projects
• Infrastructure-ready with underground utilities and water system
• Ideal for luxury hospitality or private estate development
Investment Overview
Pantai Saba has rapidly become a sought-after area for high-end beachfront development, offering exceptional land appreciation and growing tourism potential. With its wide access road, strong infrastructure, and direct ocean frontage, this site represents a premium-grade investment for visionary investors seeking long-term value and exclusivity in Bali’s coastal property market.
TANAH PANTAI SABA — where investment meets serenity, and every sunrise unfolds over your private stretch of Bali’s pristine shoreline.
Details
Updated on November 7, 2025 at 4:52 pm-
Property ID FS-23280
-
Price IDR92.3B
-
Land Area 11,500 m²
-
Property Type Land
-
Property Status For Sale
Address
-
City: Badung
-
State/county: Bali Island
-
Country: Indonesia





